11 Logan Drive , Tewksbury Twp., Hunterdon 07830-3210
  • $899,000

Overview

Property ID: HZ4001921
  • Residential
  • Property Type
  • 4
  • Bedrooms
  • 4
  • Bathrooms
  • 2
  • Garages

Description

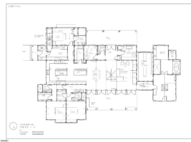
LAND ONLY11 Logan Drive is a shovel-ready, 15+ acre offering set on a private cul-de-sac and benefiting from farm assessment. The property is being offered with seller-provided architectural plans for an approximately 4,669 square foot, four-bedroom, four-and-one-half bath modern ranch-style residence featuring open-concept living, expansive patios, and a full basement with nine-foot ceilings, or buyers may pursue a custom design of their choosing. The proposed project is deemed exempt from the provisions of the Highlands Rules with approved DEP and septic system, and pending imminent final Township of Tewksbury approvals. The expansive acreage also provides flexibility for additional amenities, including a barn and pool.Tewksbury Township is distinguished by its rolling countryside, preserved open space, and refined rural setting, offering a sense of privacy and understated elegance. Residents enjoy proximity to equestrian facilities, country roads, local farm markets, and nearby shopping and dining, all while maintaining a tranquil residential atmosphere. Convenient access to Routes 78, 22, and 287, along with nearby rail service to New York City, supports seamless commuting to regional business centers without compromising the township’s serene lifestyle.

  • Address: 11 Logan Drive
  • City: Tewksbury Twp.
  • State/county: Hunterdon
  • Zip/Postal Code: 07830-3210

Details

Updated on December 17, 2025 at 1:04 pm
  • Property ID HZ4001921
  • Price $899,000
  • Land Area 15.59 Acres
  • Bedrooms 4
  • Rooms 10
  • Bathrooms 4
  • Garages 2
  • Garage Size x x
  • Year Built 2026
  • Property Type Residential
  • Property Status Active

Additional details

  • Roof Asphalt Shingle
  • Utilities All Underground
  • Sewer Septic
  • Cooling Multi-Zone Cooling
  • Heating Multi-Zone
  • County Hunterdon
  • Property Type Residential
  • Pool In-Ground Pool
  • Elementary School TEWKSBURY ES
  • Middle School OLDTURNPKE
  • High School VOORHEES
  • Architectural Style Custom Home

Features

Mortgage Calculator

Schedule a Tour

Your information

Walkscore

Contact Information

View Listings
Jill Skibinsky

Enquire About This Property

0 Review

Sort by:
Leave a Review

Leave a Review

Similar Listings

Compare listings

Compare